hu
projects
sketches
info
office
contact us
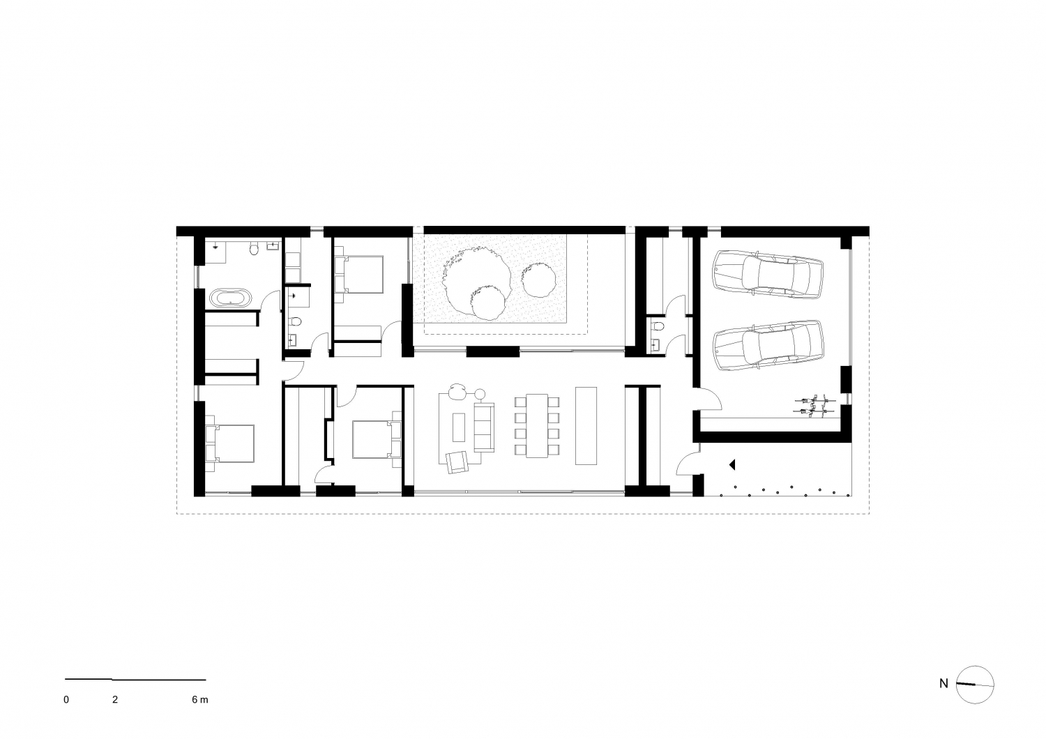
location:
Keszthely, Hungary
project date:
2018
area:
250m
2
type:
single family house
client:
KL, NCsN
project team:
Attila Béres, Éva Baráth
structural design:
Zoltán Fazekas
HVAC enginner:
Zsolt Téglás
electrical engineer:
László Boros
House K42
location:
Keszthely, Hungary
project date:
2018
area:
250m
2
type:
single family house
client:
KL, NCsN
project team:
Attila Béres, Éva Baráth
structural design:
Zoltán Fazekas
HVAC enginner:
Zsolt Téglás
electrical engineer:
László Boros
Rajzok