Summer cabin V2

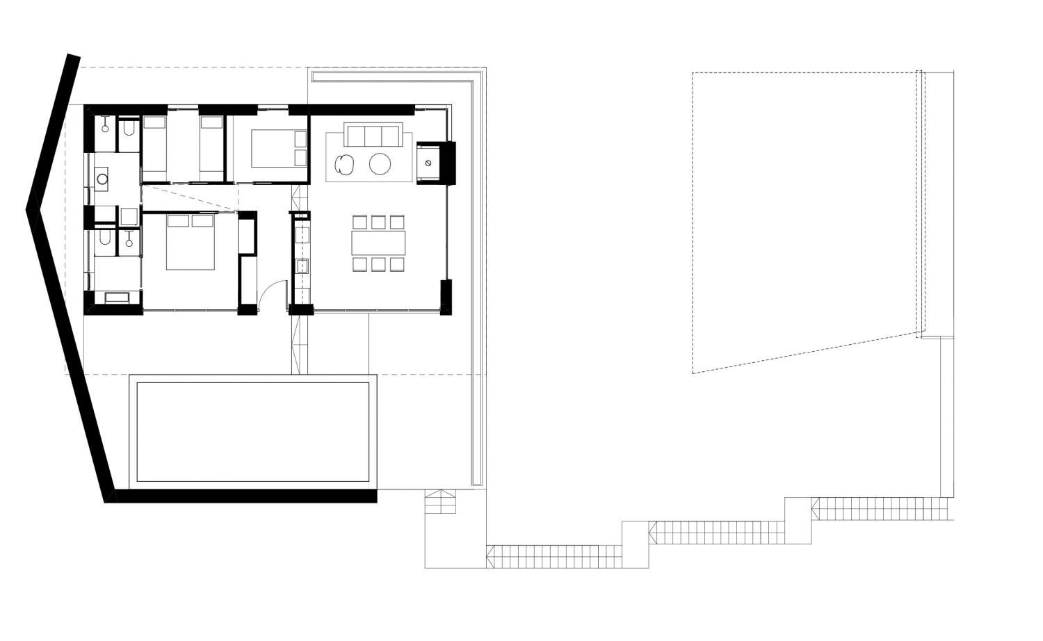
The summer cabin in Tihany at Lake Balaton, Hungary reflects to the modernist architecture of the '60s and '70s. All our design decisons were influenced by the architecture of the buildings in the surrounding area. Local materials, rough surfaces and large surfaces of glass define the main character of the building.

…
…